2. Preis
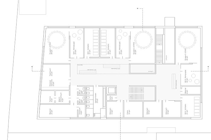
Auszug Beurteilung Preisgericht: "Die Aufgabe, ein sehr großes Raumprogramm auf dem Grundstück anzuordnen, wird durch einen 2-geschossigen Baukörper gelöst, der den überbaubaren Grundstücksbereich nahezu vollständig in Anspruch nimmt. Diese erst einmal nicht naheliegende Lösung schafft Raum für eine sehr entspannte Grundriss-Disposition, die auf die Umgebung überraschend flexibel reagiert. Der Haupteingang ist an der Nordwest-Ecke des Grundstückes richtig platziert und über einen Gebäudeeinschnitt unprätentiös markiert. Damit wird erreicht, dass das Gebäude sehr zentral betreten wird und eine übersichtliche Erschließungssituation über einen foyerartigen Mittelflur entsteht. Diese großzügige Erschließungsfläche ermöglicht auf beiden Geschossen eine vielfältige Bespielung. Ein Luftraum und das Oberlicht steigern die innenräumliche Qualität und die Wahrnehmbarkeit des Kindergartens als „ein Haus“..."




